Продажа квартиры в новостройке, Ярославль, Бурмакинская ул., 13А, Ярославская область
- Регион
- Ярославская область
| Адрес | Ярославль, Бурмакинская ул., 13АОбъект на карте |
- Тип дома
- Кирпичный
- Этаж
- 5 этаж в 9-этажном доме
- Кол-во комнат
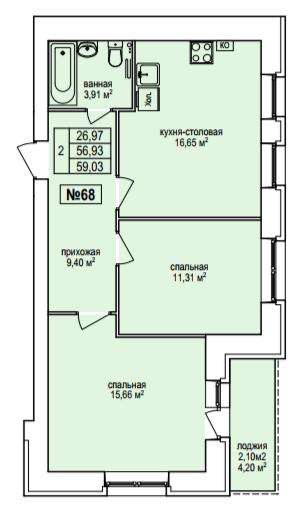
- 2
- Общая площадь
- 59.03 м2
- Жилая площадь
- 26.99 м2
- Площадь кухни
- 16.65 м2
- Дата обновления
- 19.05.2026
- Дата размещения
- 13.12.2025
Продается 2х-комн. квартира в ЖД Минималист комфорт класса во Фрунзенском районе гор. Ярославля.
Квартира располагается на 5 этаже 9-этажного кирпичного дома
Застройщик - ООО СЗ СоколСтрой1, сдача дома - I квартал 2026 года,
Квартира удобной планировки!
- Просторная кухня-столовая позволяет рационально использовать пространство и принимать гостей.
- Просторная спальная с выходом на остекленную лоджию -дополнительное место для отдыха.
- Большая Прихожая с широкой нишей для возможности установки шкафа-купе и отдельной гардеробной - дополнительные места для хранения ваших вещей
- Высота потолков - 2.7 м.
Квартира сдается в хорошей предчистовой отделке White box .
Полы-ровная стяжка, стены оштукатурены и зашпаклеваны, в санузле установлена сантехника, на кухне установлена раковина, индивидуальный газовый котёл итальянской фирмы Baxi, газовая плита, в квартире разведена электрика, установлена хорошая входная дверь.
Дом оборудован грузо-пассажирским лифтом.
Парковка автомобилей - наземная.
Обеспечение безопасности: видеонаблюдение.
Жилой Дом Минималист - это новый проект комфорт класса от Строительного Дома MENGEL. Преимущества:
- Дом полностью из керамического кирпича - хорошая -шумо и теплоизоляция.
- Индивидуальное газовое отопление. - всегда горячая вода и комфортная температура в вашей квартире, низкие коммунальные платежи!
- Эргономичные планировочные решения.
- В подъездах на первом этаже предусмотрены колясочные/велосипедные.
- Сквозные подъезды.
- Удобное уборные на 1 этаже, где можно помыть лапы собакам после прогулки.
- Во дворе детская и спортивная площадка.
- Детский сад и школа в трех минутах ходьбы, школа в пяти минутах ходьбы.
- Рядом расположены торговые и спортивные центры, магазины и аптеки.
- Остановка общественного транспорта в пяти-семи минутах ходьбы
- Возможен вариант покупки с использованием ипотечных средств,
- Возможна беспроцентная рассрочка,
- Возможна покупка с использованием материнского капитала,
- Военная ипотека.
Позвоните и узнайте условия покупки прямо сейчас!
Квартира располагается на 5 этаже 9-этажного кирпичного дома
Застройщик - ООО СЗ СоколСтрой1, сдача дома - I квартал 2026 года,
Квартира удобной планировки!
- Просторная кухня-столовая позволяет рационально использовать пространство и принимать гостей.
- Просторная спальная с выходом на остекленную лоджию -дополнительное место для отдыха.
- Большая Прихожая с широкой нишей для возможности установки шкафа-купе и отдельной гардеробной - дополнительные места для хранения ваших вещей
- Высота потолков - 2.7 м.
Квартира сдается в хорошей предчистовой отделке White box .
Полы-ровная стяжка, стены оштукатурены и зашпаклеваны, в санузле установлена сантехника, на кухне установлена раковина, индивидуальный газовый котёл итальянской фирмы Baxi, газовая плита, в квартире разведена электрика, установлена хорошая входная дверь.
Дом оборудован грузо-пассажирским лифтом.
Парковка автомобилей - наземная.
Обеспечение безопасности: видеонаблюдение.
Жилой Дом Минималист - это новый проект комфорт класса от Строительного Дома MENGEL. Преимущества:
- Дом полностью из керамического кирпича - хорошая -шумо и теплоизоляция.
- Индивидуальное газовое отопление. - всегда горячая вода и комфортная температура в вашей квартире, низкие коммунальные платежи!
- Эргономичные планировочные решения.
- В подъездах на первом этаже предусмотрены колясочные/велосипедные.
- Сквозные подъезды.
- Удобное уборные на 1 этаже, где можно помыть лапы собакам после прогулки.
- Во дворе детская и спортивная площадка.
- Детский сад и школа в трех минутах ходьбы, школа в пяти минутах ходьбы.
- Рядом расположены торговые и спортивные центры, магазины и аптеки.
- Остановка общественного транспорта в пяти-семи минутах ходьбы
- Возможен вариант покупки с использованием ипотечных средств,
- Возможна беспроцентная рассрочка,
- Возможна покупка с использованием материнского капитала,
- Военная ипотека.
Позвоните и узнайте условия покупки прямо сейчас!













