Продажа помещения различного назначения, Ярославль, Собинова ул., Д.27 к.2, Ярославская область
- Регион
- Ярославская область
| Адрес | Ярославль, Собинова ул., Д.27 к.2Объект на карте |
- Этаж
- 1 этаж в 3-этажном доме
- Общая площадь
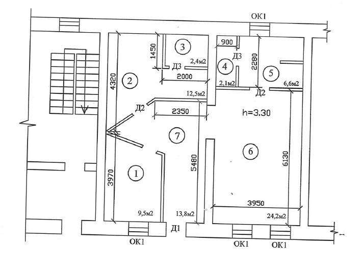
- 71.10 м2
- Дата обновления
- 17.04.2026
- Дата размещения
- 26.12.2025
Арт. 90580395. ГК Метро предлагает помещение свободного назначения с отдельным входом и закрытой территорией в самом центре города Ярославля.
Два собственника.
- Отдельный вход
- Закрытая территория (возможен въезд на территорию для арендатора)
- Санузел + выведенная дополнительно мокрая точка
- Кондиционирвоание (сплит)
- Высокие потолки 3,3м
- Выделено 2 больших кабинета и 2 небольших помещения (комната приема пищи, гардероб, либо так же мини кабинет)
Может стать отличным офисом, учебным учреждением либо бьюти салоном.
ГК "Метро" - лидер рынка коммерческой недвижимости Ярославля. У нас самый большой портфель недвижимости и наибольшая выгрузка рекламы на отраслевых площадках.
--------------------------------------------------------------
1. Больше информации по телефону и в форме чата.
2. По запросу предоставим расширенный пакет фотографий, поэтажные планы и техническую документацию.
3. Для иногородних клиентов оперативно покажем объект по видеосвязи.
4. Приглашаем посредников к сотрудничеству на выгодных условиях.
5. Если этот объект не понравился по фотографиям и описанию - обращайтесь, предложим альтернативу.
6. Фиксируем звонки в режиме 24/7, для Вашего удобства работает контакт-центр.
Два собственника.
- Отдельный вход
- Закрытая территория (возможен въезд на территорию для арендатора)
- Санузел + выведенная дополнительно мокрая точка
- Кондиционирвоание (сплит)
- Высокие потолки 3,3м
- Выделено 2 больших кабинета и 2 небольших помещения (комната приема пищи, гардероб, либо так же мини кабинет)
Может стать отличным офисом, учебным учреждением либо бьюти салоном.
ГК "Метро" - лидер рынка коммерческой недвижимости Ярославля. У нас самый большой портфель недвижимости и наибольшая выгрузка рекламы на отраслевых площадках.
--------------------------------------------------------------
1. Больше информации по телефону и в форме чата.
2. По запросу предоставим расширенный пакет фотографий, поэтажные планы и техническую документацию.
3. Для иногородних клиентов оперативно покажем объект по видеосвязи.
4. Приглашаем посредников к сотрудничеству на выгодных условиях.
5. Если этот объект не понравился по фотографиям и описанию - обращайтесь, предложим альтернативу.
6. Фиксируем звонки в режиме 24/7, для Вашего удобства работает контакт-центр.










