Продажа офиса, Рыбинск, Румянцевская/Волжская наб. ул, 4, Ярославская область
- Регион
- Ярославская область
| Адрес | Рыбинск, Румянцевская/Волжская наб. ул, 4Объект на карте |
- Этаж
- 1 этаж в 4-этажном доме
- Общая площадь
- 2300.00 м2
- Дата обновления
- 23.05.2026
- Дата размещения
- 26.03.2026
Арт. 92670269. Группа компаний Метро реализует отдельностоящее торгово-общественное здание с земельным участком расположенное по адресу: Ярославская область, г. Рыбинск, ул. Румянцевская/Волжская набережная, д 4/129.
Нежилое здание:
- 2300 кв. м, 3 этажа + чердак, 2020 года строительства.
- материал стен: кирпич
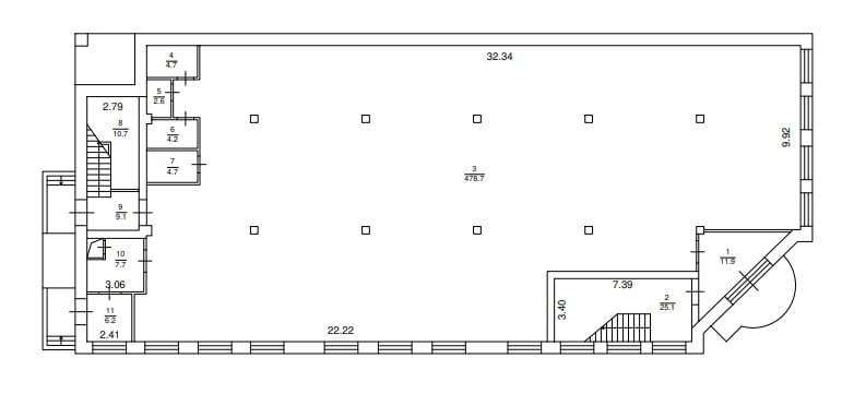
1 этаж: 565,6 кв. м. полностью подходит под коммерцию (магазины и т. д. ) . На первом этаже расположен тепловой узел и электрический распределительный щит.
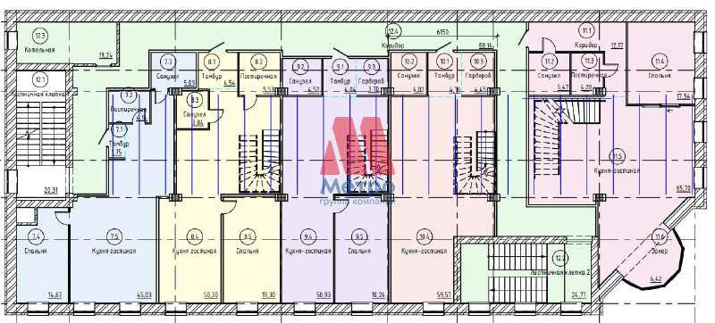
2й, 3й и 4й (чердак) этажи можно использовать под офисы и апартаменты (в т. ч. и двухъярусные)
Отопление газовое, имеется своя газовая котельная. На каждом этаже свой газовый котел.
У здания имеется центральный вход, а также два входа с обратной стороны. В здании две лестницы с двух сторон.
Земельный участок:
- общая площадь 9 соток
- Категория земель: Земли населенных пунктов
- Виды разрешенного использоваия: деловое управление
Договоры на поставку газа, электричества и водоснабжения заключены.
Нежилое здание:
- 2300 кв. м, 3 этажа + чердак, 2020 года строительства.
- материал стен: кирпич
1 этаж: 565,6 кв. м. полностью подходит под коммерцию (магазины и т. д. ) . На первом этаже расположен тепловой узел и электрический распределительный щит.
2й, 3й и 4й (чердак) этажи можно использовать под офисы и апартаменты (в т. ч. и двухъярусные)
Отопление газовое, имеется своя газовая котельная. На каждом этаже свой газовый котел.
У здания имеется центральный вход, а также два входа с обратной стороны. В здании две лестницы с двух сторон.
Земельный участок:
- общая площадь 9 соток
- Категория земель: Земли населенных пунктов
- Виды разрешенного использоваия: деловое управление
Договоры на поставку газа, электричества и водоснабжения заключены.


























