Продажа дома, Липовицы д., Ярославская область
- Регион
- Ярославская область
| Адрес | Липовицы д.Объект на карте |
- Площадь дома
- 130.00 м2
- Площадь участка
- 11.00 сот.
- Дата обновления
- 17.04.2026
- Дата размещения
- 13.12.2025
Арт. 37291790. Продажа от физического лица
Предлагаем приобрести дом с земельным участком в Экологически чистом Заволжсом районе в д. Липовицы. Это в 15 км от центра города Ярославля.
Деревня жилая, направление с. Прусово. В этом направлении есть много интересных мест для проведения досуга (ЯрБайкал, сосновый бор и т. д. ) .
Реализуется жилой двухэтажный дом из экологичного материала, на земельном участке.
Участок, общей площадью 8,22 сот, с видом на зеленые луга с сосновым бором, крайний (минимум соседей) , разработанный, (произростают плодово-ягодные насаждения и установлена теплица) .
Дом практичной планировки, полностью готов к проживанию. Продается с мебелью и техникой.
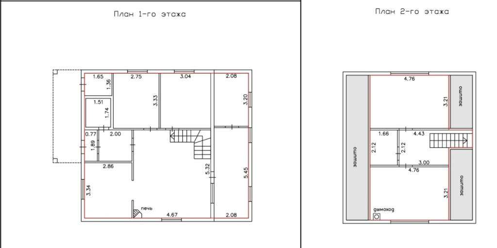
По проекту: два этажа, 4 спальни, 2 санузла, кухня-гостинная, вспомогательные помещения свободного назначения.
Параметры по дому:
Общая площадь - 130 м2
Фундамент - лента
Стены - брус "200й"
Кровля - металлопрофиль (5мм)
Коммуникации:
Газ - подключено
Отопление, ГВС (горячее водоснабжение) - электрический и газовый котел.
ХВС (вода) - питьевая (имеется заключение СЭС) , колодец ( произведена замена в 2023г. на ACV на 200 литров, тен для летнего периода) ;
Дополнительно, две скважины (одна уличная для полива)
Электричество (на случай отключений, дополнительно установлен автоматический генератор) ,
Водоотведение - септик;
На участке находится Тёплый гараж, на два машиноместа
К нему подведенны все коммуникации (вода, электричество, отопление, водоотведение) .
Хорошая транспортная доступность. Проезд круглогдичный.
--------------------------------------------------------------
Без комиссии для покупателя!
--------------------------------------------------------------
1. Больше информации по телефону и в форме чата.
2. Для иногородних клиентов оперативно покажем объект по видеосвязи.
3. Приглашаем посредников к сотрудничеству на выгодных условиях.
4. Если этот объект не понравился по фотографиям и описанию - обращайтесь, предложим альтернативу.
5. Фиксируем звонки в режиме 24/7, для Вашего удобства работает контакт-центр.
Предлагаем приобрести дом с земельным участком в Экологически чистом Заволжсом районе в д. Липовицы. Это в 15 км от центра города Ярославля.
Деревня жилая, направление с. Прусово. В этом направлении есть много интересных мест для проведения досуга (ЯрБайкал, сосновый бор и т. д. ) .
Реализуется жилой двухэтажный дом из экологичного материала, на земельном участке.
Участок, общей площадью 8,22 сот, с видом на зеленые луга с сосновым бором, крайний (минимум соседей) , разработанный, (произростают плодово-ягодные насаждения и установлена теплица) .
Дом практичной планировки, полностью готов к проживанию. Продается с мебелью и техникой.
По проекту: два этажа, 4 спальни, 2 санузла, кухня-гостинная, вспомогательные помещения свободного назначения.
Параметры по дому:
Общая площадь - 130 м2
Фундамент - лента
Стены - брус "200й"
Кровля - металлопрофиль (5мм)
Коммуникации:
Газ - подключено
Отопление, ГВС (горячее водоснабжение) - электрический и газовый котел.
ХВС (вода) - питьевая (имеется заключение СЭС) , колодец ( произведена замена в 2023г. на ACV на 200 литров, тен для летнего периода) ;
Дополнительно, две скважины (одна уличная для полива)
Электричество (на случай отключений, дополнительно установлен автоматический генератор) ,
Водоотведение - септик;
На участке находится Тёплый гараж, на два машиноместа
К нему подведенны все коммуникации (вода, электричество, отопление, водоотведение) .
Хорошая транспортная доступность. Проезд круглогдичный.
--------------------------------------------------------------
Без комиссии для покупателя!
--------------------------------------------------------------
1. Больше информации по телефону и в форме чата.
2. Для иногородних клиентов оперативно покажем объект по видеосвязи.
3. Приглашаем посредников к сотрудничеству на выгодных условиях.
4. Если этот объект не понравился по фотографиям и описанию - обращайтесь, предложим альтернативу.
5. Фиксируем звонки в режиме 24/7, для Вашего удобства работает контакт-центр.
























