Аренда помещения различного назначения, Ярославль, Громова ул., 5, Ярославская область
- Регион
- Ярославская область
| Адрес | Ярославль, Громова ул., 5Объект на карте |
- Этаж
- 1 этаж в 1-этажном доме
- Общая площадь
- 560.00 м2
- Дата обновления
- 16.04.2026
- Дата размещения
- 13.03.2026
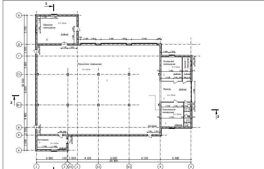
Арт. 92473098. Предлагаем в аренду здание, площадью 561,7 кв. м., расположенное по адресу: г. Ярославль, ул. Громова, локация Суринского моста со стороны Холодмаша
Здание введено в эксплуатацию с февраля 2026г.
Одни высокие въездные ворота. Внутри организованы подсобные помещения. Заезд как от Суринского моста, так и с ул. Громова.
Отопление - газ. котел (сейчас временно электрокотел) , вода - скважина, канализация - септик.
Отличительные особенности:
1линия расположения, хорошая видимость с автодороги.
Своя парковочная зона у здания (около 10 машиномест) .
Готовность со стороны собсвтенника провести черновые отделочные работы в помещении под арендатора.
--------------------------------------------------------------
Без комиссии, аренда от собственника!
--------------------------------------------------------------
ГК "Метро" - лидер рынка коммерческой недвижимости Ярославля. У нас самый большой портфель недвижимости и наибольшая выгрузка рекламы на отраслевых площадках.
--------------------------------------------------------------
1. Больше информации по телефону и в форме чата.
2. По запросу предоставим расширенный пакет фотографий, поэтажные планы и техническую документацию.
3. Для иногородних клиентов оперативно покажем объект по видеосвязи.
4. Приглашаем посредников к сотрудничеству на выгодных условиях.
5. Если этот объект не понравился по фотографиям и описанию - обращайтесь, предложим альтернативу.
6. Фиксируем звонки в режиме 24/7, для Вашего удобства работает контакт-центр.
Здание введено в эксплуатацию с февраля 2026г.
Одни высокие въездные ворота. Внутри организованы подсобные помещения. Заезд как от Суринского моста, так и с ул. Громова.
Отопление - газ. котел (сейчас временно электрокотел) , вода - скважина, канализация - септик.
Отличительные особенности:
1линия расположения, хорошая видимость с автодороги.
Своя парковочная зона у здания (около 10 машиномест) .
Готовность со стороны собсвтенника провести черновые отделочные работы в помещении под арендатора.
--------------------------------------------------------------
Без комиссии, аренда от собственника!
--------------------------------------------------------------
ГК "Метро" - лидер рынка коммерческой недвижимости Ярославля. У нас самый большой портфель недвижимости и наибольшая выгрузка рекламы на отраслевых площадках.
--------------------------------------------------------------
1. Больше информации по телефону и в форме чата.
2. По запросу предоставим расширенный пакет фотографий, поэтажные планы и техническую документацию.
3. Для иногородних клиентов оперативно покажем объект по видеосвязи.
4. Приглашаем посредников к сотрудничеству на выгодных условиях.
5. Если этот объект не понравился по фотографиям и описанию - обращайтесь, предложим альтернативу.
6. Фиксируем звонки в режиме 24/7, для Вашего удобства работает контакт-центр.

















